Когда говорят, что профнастил уже не современный материал и подходит лишь для обшивки складов - посмотрите на фото реализованного фасада:
Красиво, не правда ли?!
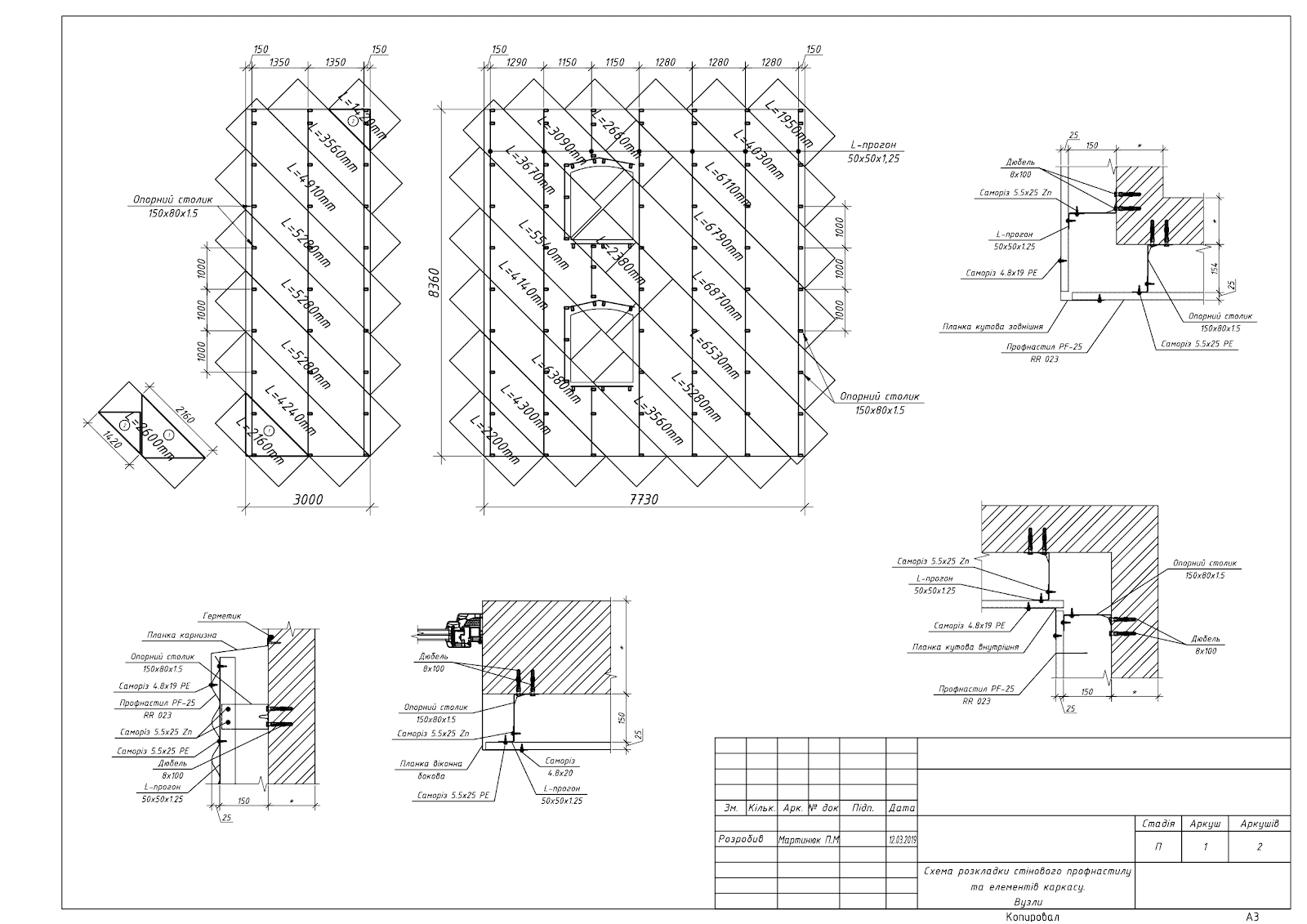
Как появилось решение для данного фасада: заказчик увидел здание с полосами под углом и сказал, что хочет примерно такое же.
Конструктивное решение данного фасада очень простое:
- вертикальные направляющие;
- волнистый профнастил.
Несколько фото в процессе монтажа.
![]() |
| Монтаж кронштейнов |
![]() |
| Монтаж профнастила |
![]() |
| Крепление профнастила к направляющим |
![]() |
| Раскладка профнастила, подсистемы и узлы |
Возникли вопросы - задавайте!







Комментариев нет:
Отправить комментарий